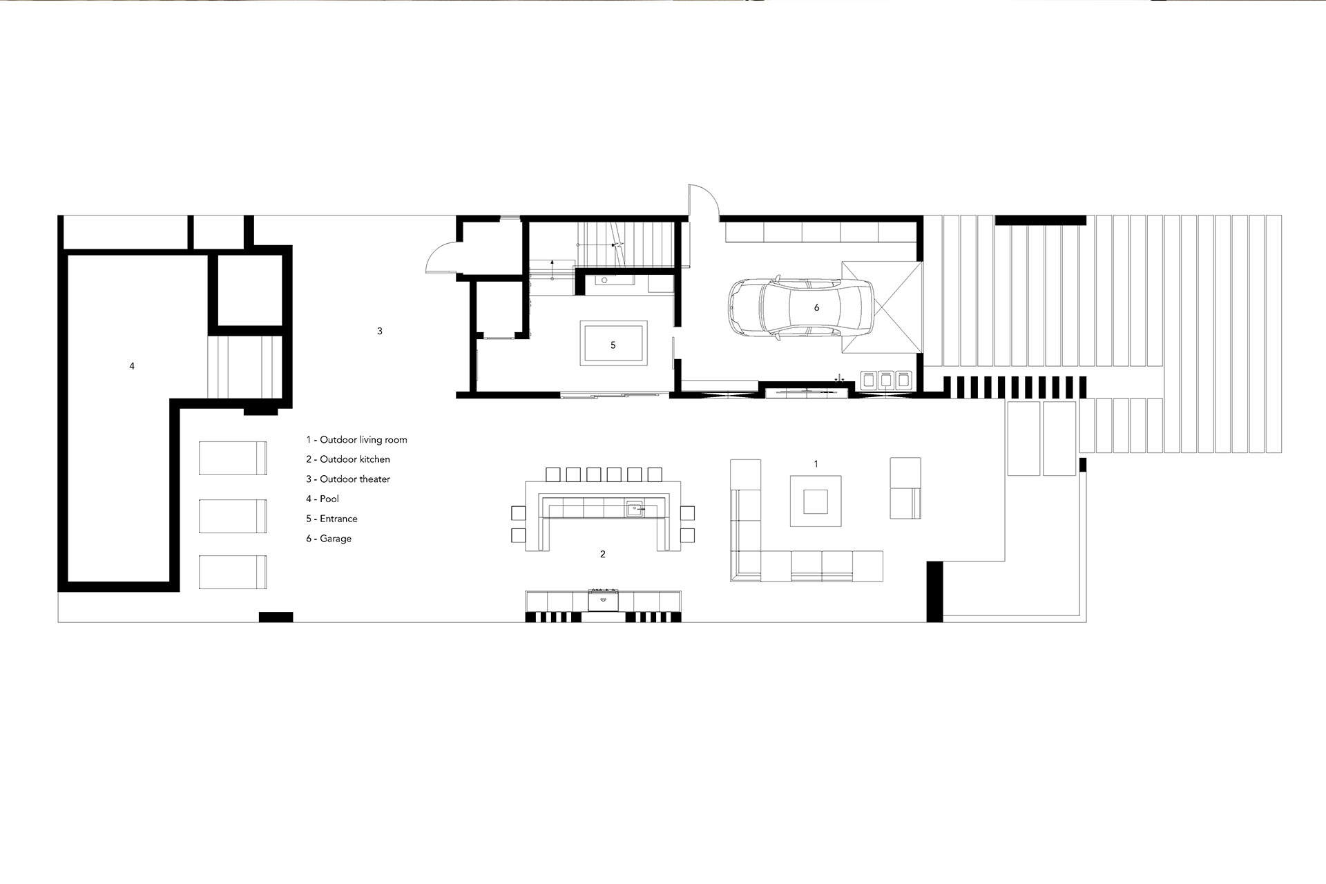
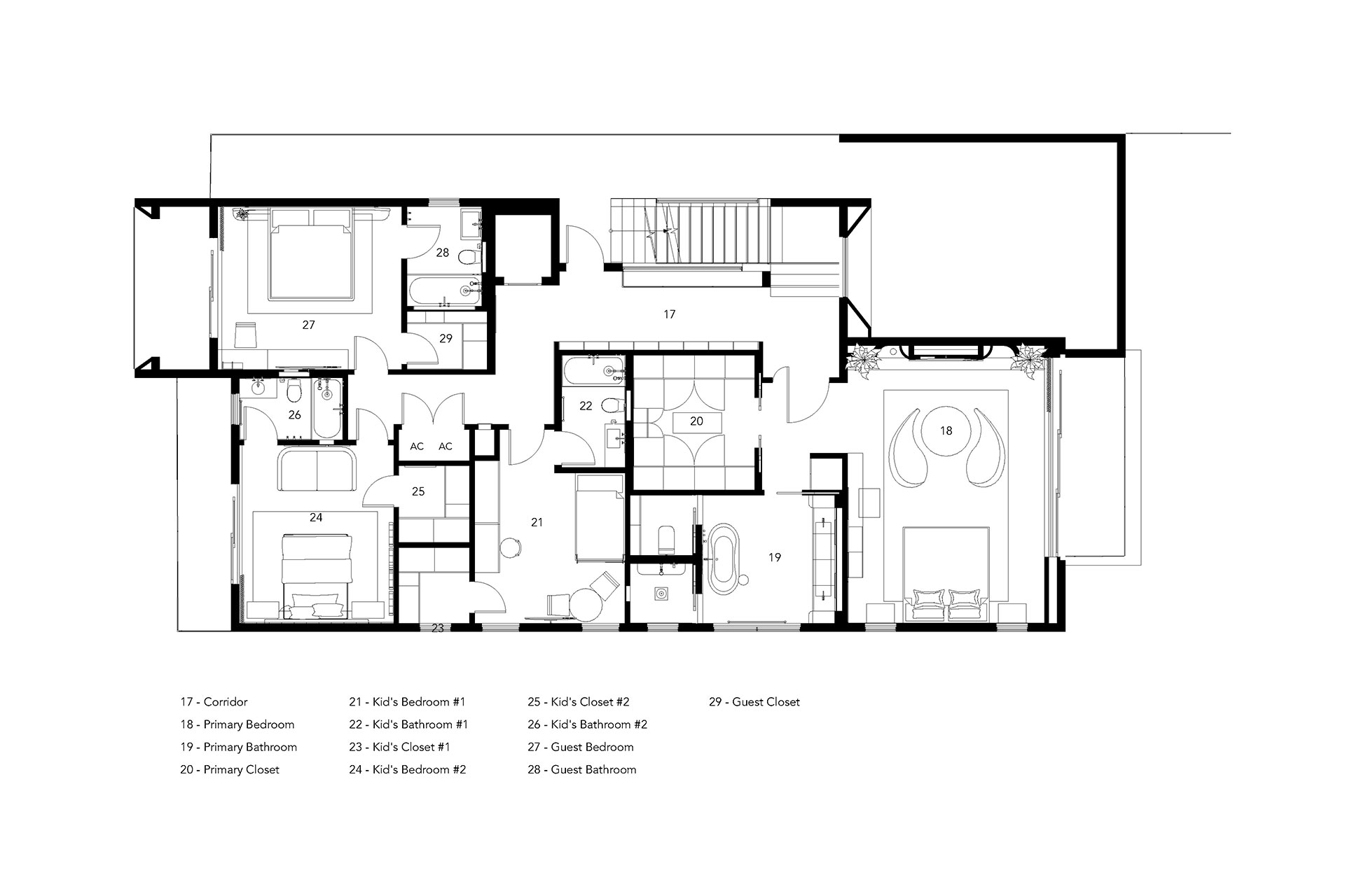
Miami Beach Modern Villa

New Construction
5 bedrooms
7 bathrooms
6,598 sq. ft.

Welcome to our Miami interior project, where modern elegance meets family comfort. Designed for a young family of three, this space is a testament to our commitment to creating homes that are not only stylish but also functional and welcoming. With a focus on natural textures and ambient lighting, we’ve crafted an environment that grows with the family, offering both the sophistication of a chic Miami home and the practicality needed for everyday life. Experience the perfect blend of design and comfort in a space that truly feels like home.

Share the Project